
Rossville, MD
Located across from Essex Community College, this site borders I-95 and high decibel levels impact the quality of a residential community.
When designing this project, site grades were lowered at strategic places and a sound barrier constructed to obtain permissible decibel levels.
This project will provide a much-needed starter home community close to the Towson & White Marsh areas.
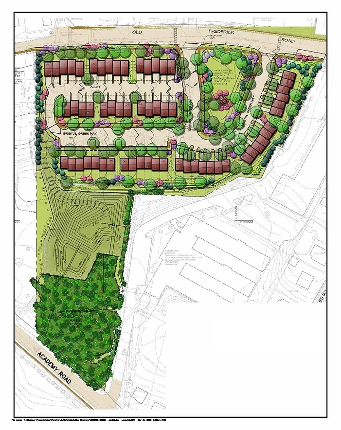
Catonsville, MD
Bordered by an existing road to the north, a professional center to the east and south, and a cemetery to the west, this project provided plenty of challenges to get a 60 lot townhouse community with all the necessary amenities to fit just right.
Parkville, MD
An abandoned parking area on an old restaurant site provided the perfect redevelopment opportunity for a 28 lot townhouse development.
Access along a state road meant adhering to both local and SHA standards while navigating extensive existing utilities and features to seamlessly integrate these new homes into the community.
Woodlawn, MD
Redevelopment projects are becoming more common this day in age for land development. In its former time, this site hosted a clubhouse, pool, and various recreational areas and buildings. Now, it has been transformed into a charming 62 lot townhouse community boasting views over a pond.
Rental Community