
White Marsh, MD
Located across from White Marsh Mall, this project consists of 15 different property parcels. It will be completed in 11 different construction phases which includes 237 houses (both townhouse and single family), 5 apartment buildings, a new church and an assisted living facility.
Owings Mills, MD
This project appears to be a typical single-family development but signifies how the development business is fluid and constantly changing. What you don’t see from these photos is that this project was previously approved and partially constructed as a business center.
With the saturation of office space and a developer that recognized the need and interest in housing close to a business area, this site became a re-development project, marketing buyers that want to live close to an employment center yet live in suburban community.
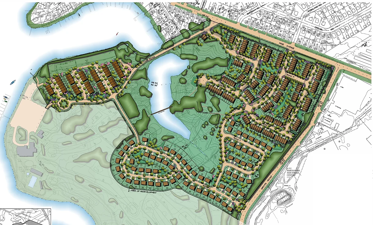
Sparrows Point
This country club & golf course established in the 1950’s may be the last of its kind on the east side of Baltimore County. Like many other clubs it has struggled to stay lively. They have partnered with a local developer in hopes of bringing back it’s vibrant past and a new housing project consisting of town homes, single family homes, and villas along a newly re-designed golf course and club house.
It is located directly on the Chesapeake Bay, adding an additional level of complexity to the design & permitting process. The layout of infrastructure and storm water management facilities was a complicated partnership from both engineering & planning.
Townhomes, Multi-Family Buildings, and Retail.
